Bekijk de
Woningen
Residentie Burgemeester in LEUVEN
Doordacht gebouwd, eenvoudig goed gelegen.
In het hart van Leuven, in de bekende Blijde Inkomststraat, wordt Studentenresidentie Burgemeester gerealiseerd: een studentenproject met een duidelijke focus op kwaliteitsvolle studentenkamers, comfort en lange termijn.
Het statige hoekgebouw telt 35 studentenkamers met eigen sanitair en 6 autonome studio’s, verspreid over vijf niveaus. Op elke verdieping is een volledig ingerichte gemeenschappelijke keuken voorzien. Bewoners hebben daarnaast toegang tot een aangelegde binnentuin.
Dit gebouw onderscheidt zich van de rest dankzij een riant dakterras met een geweldig uitzicht over de Leuvense binnenstad dat bereikbaar is via een lift. Hier ervaar je Leuven op een heel andere manier, met een rooftop die je investering letterlijk doet bovenuit stijgen in Leuven. Extra handig is de (semi-)overdekte fietsenstalling met plaats voor 60 (bak)fietsen.
Kamers, studio’s en keukens worden volledig instapklaar opgeleverd: bemeubeld, geschilderd en afgewerkt met verduisterende, brandvertragende gordijnen. Het gebouw wordt uitgerust met energiezuinige technieken zoals lucht-water warmtepompen, ventilatiesysteem D, vloerverwarming en zonnepanelen voor de studio’s.
De centrale ligging - op wandelafstand van faculteiten, station, Oude en Grote Markt, Ladeuzeplein en winkels - maakt dit een logische woonplek voor studenten en een onderbouwde keuze voor wie investeert met visie.
In het hart van Leuven, in de bekende Blijde Inkomststraat, wordt Studentenresidentie Burgemeester gerealiseerd: een studentenproject met een duidelijke focus op kwaliteitsvolle studentenkamers, comfort en lange termijn.
Het statige hoekgebouw telt 35 studentenkamers met eigen sanitair en 6 autonome studio’s, verspreid over vijf niveaus. Op elke verdieping is een volledig ingerichte gemeenschappelijke keuken voorzien. Bewoners hebben daarnaast toegang tot een aangelegde binnentuin.
Dit gebouw onderscheidt zich van de rest dankzij een riant dakterras met een geweldig uitzicht over de Leuvense binnenstad dat bereikbaar is via een lift. Hier ervaar je Leuven op een heel andere manier, met een rooftop die je investering letterlijk doet bovenuit stijgen in Leuven. Extra handig is de (semi-)overdekte fietsenstalling met plaats voor 60 (bak)fietsen.
Kamers, studio’s en keukens worden volledig instapklaar opgeleverd: bemeubeld, geschilderd en afgewerkt met verduisterende, brandvertragende gordijnen. Het gebouw wordt uitgerust met energiezuinige technieken zoals lucht-water warmtepompen, ventilatiesysteem D, vloerverwarming en zonnepanelen voor de studio’s.
De centrale ligging - op wandelafstand van faculteiten, station, Oude en Grote Markt, Ladeuzeplein en winkels - maakt dit een logische woonplek voor studenten en een onderbouwde keuze voor wie investeert met visie.
Ben Torrekens
016 15 31 15
ben@immolivit.be
Beschikbare units
Residentie Burgemeester |
||||||
|---|---|---|---|---|---|---|
| Gelijkvloers | ||||||
| Beschrijving | Slaapkamers | Bewoonbare opp. | Terras | Prijs | ||
| Burgemeester 00.01 Bekijk details | Slpk. 1 | Bew. opp. 39,90 m² | Terras – | Prijs € 311.000 | ||
| Burgemeester 00.02 Bekijk details | Slpk. 1 | Bew. opp. 25,30 m² | Terras – | Prijs € 240.000 | ||
| Burgemeester 00.03 | Slpk. 1 | Bew. opp. 19,20 m² | Terras – | Prijs Verkocht | ||
| Burgemeester 00.04 | Slpk. 1 | Bew. opp. 19,20 m² | Terras – | Prijs Verkocht | ||
| Burgemeester 00.05 Bekijk details | Slpk. 1 | Bew. opp. 34,56 m² | Terras – | Prijs € 292.000 | ||
| Burgemeester 00.06 Bekijk details | Slpk. 1 | Bew. opp. 20,14 m² | Terras – | Prijs € 245.000 | ||
| Burgemeester 00.07 Bekijk details | Slpk. 1 | Bew. opp. 18,84 m² | Terras – | Prijs € 235.000 | ||
| Eerste verdieping | ||||||
| Beschrijving | Slaapkamers | Bewoonbare opp. | Terras | Prijs | ||
| Burgemeester 01.02 | Slpk. 1 | Bew. opp. 30,40 m² | Terras – | Prijs Verkocht | ||
| Burgemeester 01.03 | Slpk. 1 | Bew. opp. 21,20 m² | Terras – | Prijs Verkocht | ||
| Burgemeester 01.05 Bekijk details | Slpk. 1 | Bew. opp. 20,80 m² | Terras – | Prijs € 230.000 | ||
| Burgemeester 01.07 Bekijk details | Slpk. 1 | Bew. opp. 19,20 m² | Terras – | Prijs € 230.000 | ||
| Burgemeester 01.06 Bekijk details | Slpk. 1 | Bew. opp. 19,20 m² | Terras – | Prijs € 230.000 | ||
| Burgemeester 01.01 Bekijk details | Slpk. 1 | Bew. opp. 19,48 m² | Terras – | Prijs € 215.000 | ||
| Burgemeester 01.04 | Slpk. 1 | Bew. opp. 25,20 m² | Terras – | Prijs Verkocht | ||
| Burgemeester 01.09 | Slpk. 1 | Bew. opp. 20,14 m² | Terras – | Prijs Verkocht | ||
| Burgemeester 01.08 Bekijk details | Slpk. 1 | Bew. opp. 19,26 m² | Terras – | Prijs € 220.000 | ||
| Burgemeester 01.10 Bekijk details | Slpk. 1 | Bew. opp. 18,84 m² | Terras – | Prijs € 235.000 | ||
| Tweede verdieping | ||||||
| Beschrijving | Slaapkamers | Bewoonbare opp. | Terras | Prijs | ||
| Burgemeester 02.01 | Slpk. 1 | Bew. opp. 19,48 m² | Terras – | Prijs Verkocht | ||
| Burgemeester 02.02 Bekijk details | Slpk. 1 | Bew. opp. 30,40 m² | Terras – | Prijs € 292.000 | ||
| Burgemeester 02.03 | Slpk. 1 | Bew. opp. 21,20 m² | Terras – | Prijs Verkocht | ||
| Burgemeester 02.05 | Slpk. 1 | Bew. opp. 20,08 m² | Terras – | Prijs Verkocht | ||
| Burgemeester 02.04 | Slpk. 1 | Bew. opp. 25,02 m² | Terras – | Prijs Verkocht | ||
| Burgemeester 02.06 | Slpk. 1 | Bew. opp. 19,20 m² | Terras – | Prijs Verkocht | ||
| Burgemeester 02.07 | Slpk. 1 | Bew. opp. 19,20 m² | Terras – | Prijs Verkocht | ||
| Burgemeester 02.08 Bekijk details | Slpk. 1 | Bew. opp. 19,26 m² | Terras – | Prijs € 225.000 | ||
| Burgemeester 02.08 | Slpk. 1 | Bew. opp. 20,14 m² | Terras – | Prijs Verkocht | ||
| Burgemeester 02.10 | Slpk. 1 | Bew. opp. 18,84 m² | Terras – | Prijs Verkocht | ||
| Derde verdieping | ||||||
| Beschrijving | Slaapkamers | Bewoonbare opp. | Terras | Prijs | ||
| Burgemeester 03.01 Bekijk details | Slpk. 1 | Bew. opp. 19,48 m² | Terras – | Prijs In optie | ||
| Burgemeester 03.02 Bekijk details | Slpk. 1 | Bew. opp. 30,40 m² | Terras – | Prijs € 294.500 | ||
| Burgemeester 03.03 | Slpk. 1 | Bew. opp. 21,20 m² | Terras – | Prijs Verkocht | ||
| Burgemeester 03.04 | Slpk. 1 | Bew. opp. 25,02 m² | Terras – | Prijs Verkocht | ||
| Burgemeester 03.05 Bekijk details | Slpk. 1 | Bew. opp. 19,20 m² | Terras – | Prijs € 237.500 | ||
| Burgemeester 03.06 Bekijk details | Slpk. 1 | Bew. opp. 19,20 m² | Terras – | Prijs € 237.500 | ||
| Burgemeester 03.07 Bekijk details | Slpk. 1 | Bew. opp. 19,20 m² | Terras – | Prijs € 237.500 | ||
| Burgemeester 03.08 Bekijk details | Slpk. 1 | Bew. opp. 19,26 m² | Terras – | Prijs € 237.500 | ||
| Burgemeester 03.09 | Slpk. 1 | Bew. opp. 20,14 m² | Terras – | Prijs Verkocht | ||
| Burgemeester 03.10 Bekijk details | Slpk. 1 | Bew. opp. 18,84 m² | Terras – | Prijs € 242.500 | ||
| Vierde verdieping | ||||||
| Beschrijving | Slaapkamers | Bewoonbare opp. | Terras | Prijs | ||
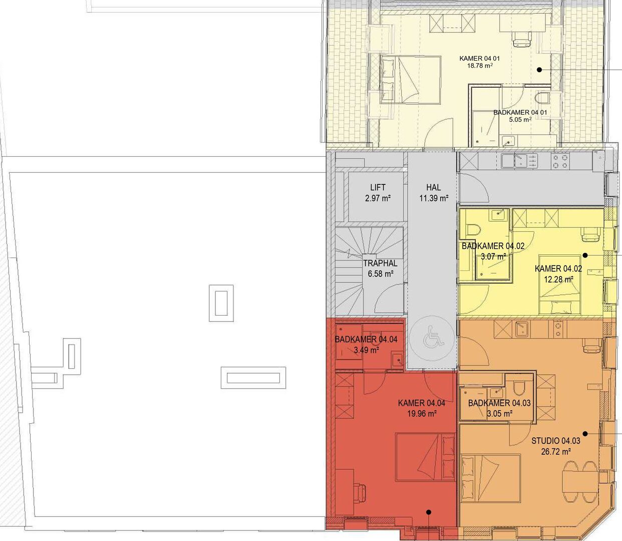
| Burgemeester 04.01 (met airco) Bekijk details | Slpk. 1 | Bew. opp. 45,01 m² | Terras – | Prijs In optie | ||
| Burgemeester 04.02 Bekijk details | Slpk. 1 | Bew. opp. 19,13 m² | Terras – | Prijs € 235.000 | ||
| Burgemeester 04.03 | Slpk. 1 | Bew. opp. 37,45 m² | Terras – | Prijs Verkocht | ||
| Burgemeester 04.04 | Slpk. 1 | Bew. opp. 28,83 m² | Terras – | Prijs Verkocht | ||
Potentiële projectgrond in eigendom?
U beschikt over een eigendom waarvan u het vermoeden hebt dat er meer mee mogelijk is?
Wij onderzoeken deze graag voor u in alle discretie en transparantie. Na ons eerste onderzoek werken we samen een plan van aanpak uit.
Niet gevonden wat u zocht? Blijf op de hoogte van ons nieuwe aanbod.
We houden je graag als eerste op de hoogte over het nieuwste aanbod dat heel specifiek voldoet aan jou criteria.
Schrijf u in