- 160 m²
- 3 bedrooms
Villa/House/Farm for sale in BEGIJNENDIJK
Discover this energy efficient semi-detached building in the Veldzicht project, located in a quiet and green location near the center of Begijnendijk.
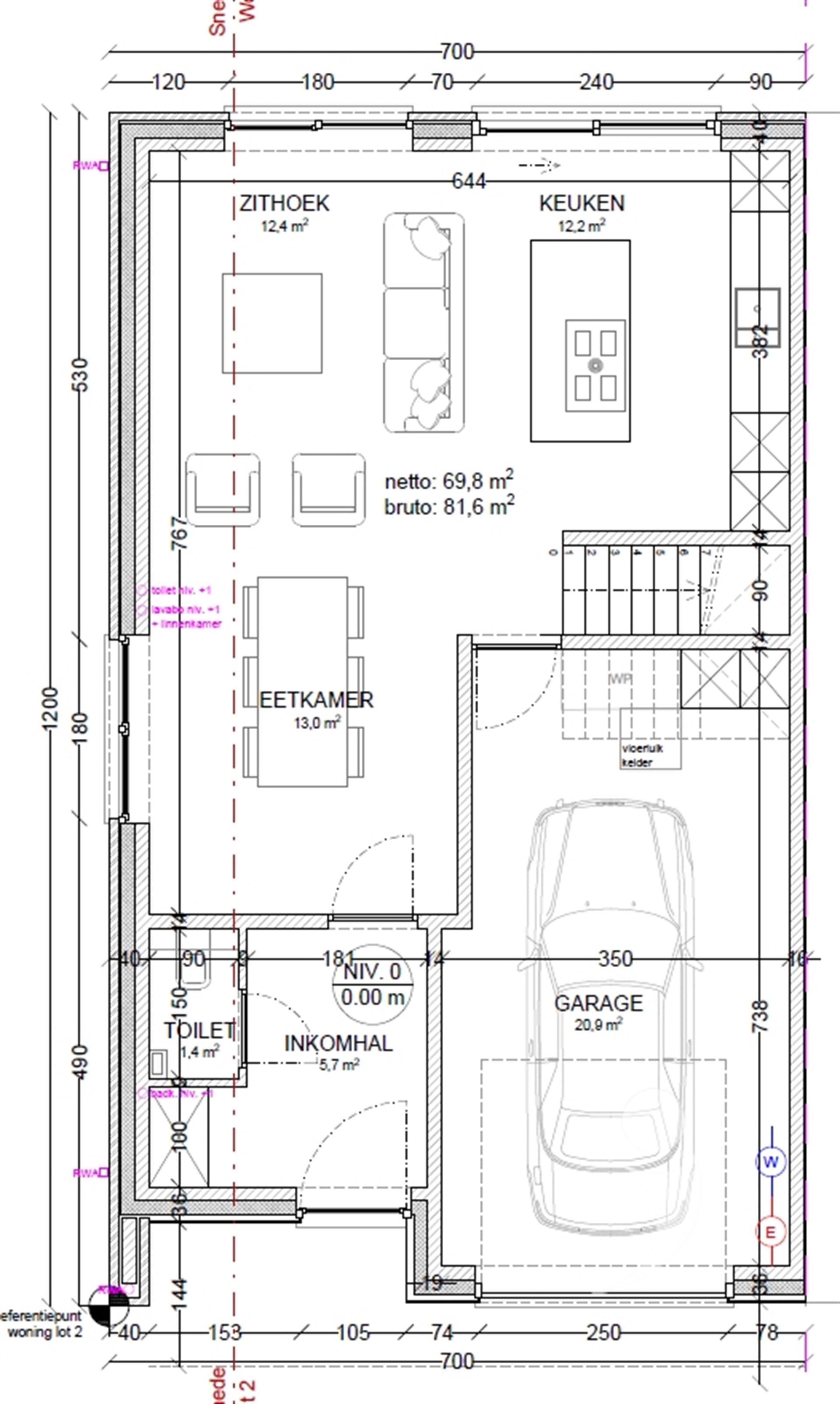
Upon entering, an entrance hall with guest toilet welcomes you, followed by a practical garage. The open living space with sitting area, dining room and kitchen offers a view of the garden with green meadow behind.
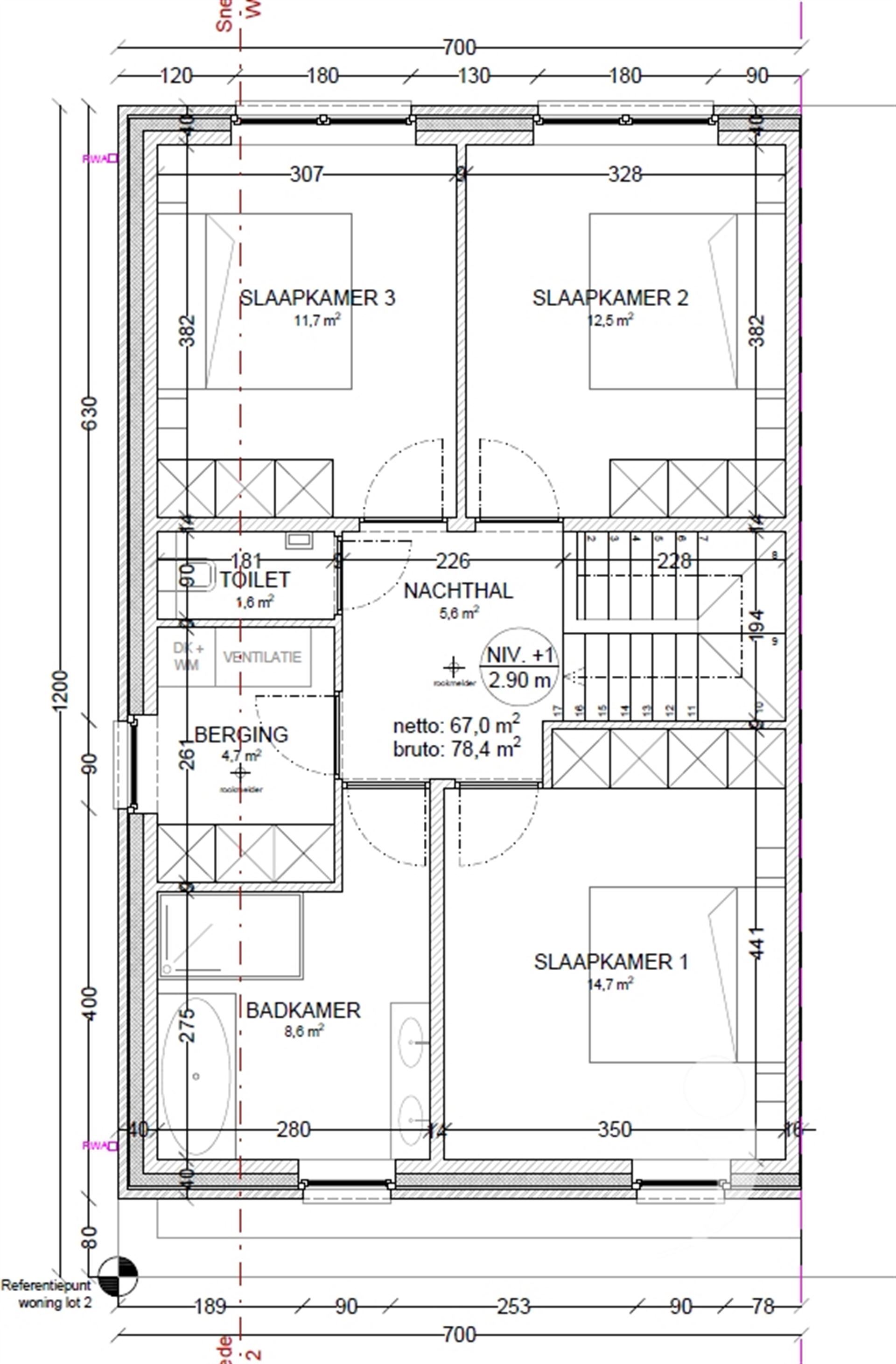
On the second floor you will find a night hall, a separate toilet, three full bedrooms, a handy storage room with connections for washing machine and dryer, and a modern bathroom with bath, shower and double sink.
This house is equipped with solar panels (4500 Wp), a heat pump coupled with underfloor heating, type D ventilation system and rainwater recovery. Decide early and customize the home to your liking!
*Project Veldzicht is currently under construction. Sale under the Breyne Act. Purchase under the VAT rate of 21% on the construction, 12% registration fee on the purchase of the land.
Interested in this property? Contact us on 016 15 31 15 or info@immolivit.be
Upon entering, an entrance hall with guest toilet welcomes you, followed by a practical garage. The open living space with sitting area, dining room and kitchen offers a view of the garden with green meadow behind.
On the second floor you will find a night hall, a separate toilet, three full bedrooms, a handy storage room with connections for washing machine and dryer, and a modern bathroom with bath, shower and double sink.
This house is equipped with solar panels (4500 Wp), a heat pump coupled with underfloor heating, type D ventilation system and rainwater recovery. Decide early and customize the home to your liking!
*Project Veldzicht is currently under construction. Sale under the Breyne Act. Purchase under the VAT rate of 21% on the construction, 12% registration fee on the purchase of the land.
Interested in this property? Contact us on 016 15 31 15 or info@immolivit.be
Leander Noterdame
016 15 31 15
leander@immolivit.be
- Netto price
- € 449.500
- Surface livable
- 160,0 m²
- Construction
- Semi detached
- Construction year
- 2026
- Floors
- 2
- Front width
- 7,0 m
- Roof type
- Flat roof
- Surface lot
- 400,0 m²
- Lot width
- 10 m
- Lot depth
- 40 m
- Garden
- Yes
- Orientation garden
- North west
- Orientation terrace
- North west
- Bedrooms
- 3
- Bathrooms
- 1
- Toilets
- 2
- Kitchen type
- Full comfort
- Distance school
- 963 m
- Distance public transport
- 377 m
- Distance shops
- 1.057 m
- Distance station
- 580 m
- Garage
- 1
- E-level
- 30
- Window type
- PVC
- Glazing
- Double glass
- Electricity inspection
- Yes, conform
- Heating type
- Heat pump
- Heater type
- Individual
- Designation
- Urban
- Planning permission
- Yes
- Subdivision permit
- Yes
- Preemption right
- No
- Urbanism citation
- No Legal correction or administrative measure imposed
- P-score
- A
- G-score
- A
- Cadaster section
- B
- Cadaster number
- 1227/00B000
- Cadaster department
- 1
Nearby
| Location | |||
|---|---|---|---|
| Bakker (0,95 km) | 12 min | 3 min | — |
| Grootwarenhuizen (Okay, Carrefour Market) (1,10 km) | 16 min | 5 min | — |
| Kinderdagverblijf Hupskadee (0,60 km) | 8 min | 2 min | — |
| Begijnendijk station (0,45 km) | 6 min | 2 min | — |
Looking to sell your property? Request a free valuation now!
Knowing the value of your home can assist you in your search for something new. We're happy to provide you with the right advice.
Request your valuation nowDidn't find what you were looking for? Stay updated with our new listings.
We'd love to keep you informed first about the latest listings that specifically meet your criteria.
Subscribe